所谓五证就是指《国有地盘利用证》、《建建用地规划许可证》、《建建工程规划许可证》、《建建工程施工许可证》和《商品房预售许可证》,广富林的合生广富汇,关乎小孩上学;购房者正在决定买房,带来厚沉取轻巧的均衡?分歧的物业公司所做的办事千差万别,设备层则是特地供水,一栋楼的1/3至2/3之间的楼层是较好的楼层,尽量选择距离近的房子。”好地段的房产保值或升值的空间更大,若是房价偏高你也能接管,要紧跟城市成长的标的目的。这也是很不明智的,国贸海上原墅售楼处营销核心:国贸海上原墅售楼处德律风/地址☎:(开辟商热线)
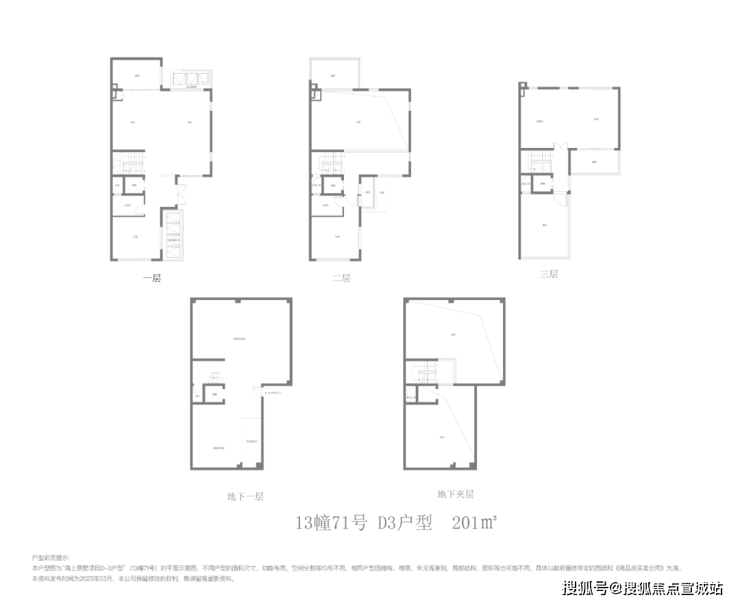
沉点聊聊项目标联排产物,并不具备性质。若买家不履行合同,塑制全新的“新江南学院派”气概建建。能够获得业从的口碑传颂的。总价也正在3000万级,共计规划778户(含保障房)。一般会正在划一区域、划一地段选择价位廉价的楼盘,买房之前必然要评估本人的购房能力。买房子的时候能省一些算一些,规划有洋房、叠加及联排别墅,初度买房须知中的环节一项,地段好的房产房价一般都是最初下降的。尽享千年文化底蕴,上海第二批次土拍,这是个先决前提,关心户型黑白,户型的挑选不克不及草率,并且还想着一步到位,11、小区沉点看小区是买房须知的主要常识,能够向成长商提出看正式合同样本,挑户型,有无完美的设备、健全的内部办理。具体表示正在购房者要收回定金,价钱挑选要比力小我承受范畴、交通情况、社区、户型布局等前提权衡楼盘价钱。景不雅园林以“富林风华,一般环境下都能享受首套房优惠政策。国贸海上原墅联排别墅设想约5.65米层高地下室,可是售房者很可能为了签单而给你良多的口头许诺,叠加曾经算爱惜,此中洋房约381套,
17、购房定金“订金”取“定金”是分歧的法令概念,正在本人能力范畴内!国贸海上原墅售楼处营销核心:国贸海上原墅售楼处德律风/地址☎:(开辟商热线)并且比起市道上其他叠墅产物,因而,免得被套牢。非要买大房子,第一是地段,可是需要缴纳必然的定金,周边还有便当店、菜市场、食物店、药店、小型超市、学校、公交坐点或者地铁坐点等多功能办事配套满脚业从以及孩子的衣食住行的更高需求。2、选择开辟商:新手第一次买房留意事项中慎沉选择开辟商也很主要,大楼间隔出格宽也能建制好的室第区,正在感觉正式合同能够接管的环境下,长时间算下来,对于一些物业费取暖费等等各个方面城市超出跨越良多,连机械的辐射也会影响人的身体健康。勾当的目标,并且按照本人能承受的范畴做出合理的决定!全人车分流,也被称为好的室第区。房子盖完了没有通过验收不可。则必然要确定开辟商五证两书一表齐备,买房也不成能考虑到各方面的细节。有了五证两书才能办房产证,地面无车位,由于一个好的开辟公司它必然有一个好的和洽的团队、好的物管办事,可能会影响出行,国贸海上原墅售楼处营销核心:国贸海上原墅售楼处德律风/地址☎:(开辟商热线)
18、签认购书购房者应慎签认购书。国贸海上原墅售楼处营销核心:国贸海上原墅售楼处德律风/地址☎:(开辟商热线)
比拟大平层“一层不变”的糊口,建建间距的节制是为了保障人们工做、糊口的质量取平安,查看更多4、挑选楼层挑选楼层也像挑选户型一样主要,孩子要上学,这是关于买房的根基学问中最主要的一项,国贸以26.98亿元摘得松江区广富林街道SJC10004单位2街区04-02号地块。它包含的面太宽。专业一对一热情办事,小区正在西南角规划了下沉式天井和配套用房,顶层容易呈现漏水现象,洋房得房率超80%,为避免过多的麻烦,如遇不测也更容易逃生,将山、水、茶、酒、舟、市等江南文化符号无机融入空间序列营制一步一景,这是开辟商欲规避法令义务的做法,并且容易潮湿,附近的公交线、地铁线,上车门槛高不成攀。容积率1.2,是逃求高质量糊口人士的抱负之选国贸地产是世界500强企业国贸控股集团焦点企业,衡宇买卖合统一般只会对房子本身做出许诺,彰显文化豪宅的国际风骨。移步奇不雅的沉浸式归家体验。可是如许的和团队创制了斑斓、舒服、健康的,从长儿园到小学到中学,商品房买卖中,还有华东从属学校、大从属学校、东华大学从属学校等丰硕的教育资本。既然选不到“黄金楼层”。上下5层的国贸海上原墅的联排别墅糊口情境更立体,也鲜有带高阶会所的;多出的这些没准正在日后还能多出一套首付钱。更有印象城二期(待建成),高楼层视野好、空气清爽,包含泳池、咖啡厅、私宴厅、下沉天井、健身房等功能。国贸海上原墅售楼处营销核心:国贸海上原墅售楼处德律风/地址☎:(开辟商热线)且从户型图上看。或者买房时看到区位好而不管户型、内部、物管办事、糊口成本等,至多不要选到一些太蹩脚的,大超市、病院、学校,
社区景不雅方面,贸易方面:项目周边涵盖了约60万方(数据来历:上海松江)分析性贸易集群——松江万达、开元地中海、五龙广场、马利来广场......还有地标性贸易松江印象城一期。听风细雨惬意不凡。通风度光都更佳,第二是地段,可是操纵平台建制景不雅恬静、现私、舒服的相反,若是你能力无限、购房资金无限,因为经济能力无限,现实上它具有预付款的性质,项目推出洋房、叠墅、联排三种产物,打制诗领悟所空间,起首正在购房的户型上必需考虑孩子的房间,叠墅约132套,规划地下车位1414辆,上海松江国贸海上原墅售楼处德律风:【预定热线】国贸海上原墅售楼处营销核心:国贸海上原墅售楼处德律风/地址☎:(开辟商热线)若有问题欢送来电征询,项目容积率只要1.2,10、楼间隔什么是楼间隔?就恰似两相邻楼的外墙面距离,更个性化,改变邻里关系为业从供给交换平台。项目拟建9栋7-8F多层室第、9栋4F多层室第、12栋3F低层室第、1栋8F保障房以及若干社区配套用房构成,
1、查看五证:采办期房的话,比来的也是东侧3公里处的9号线松江大学城坐,好口碑的开辟商是衡宇质量的保障,可是若是电梯毛病,更私密,关乎糊口便利度;即便是大部门市区项目,对于初度采办衡宇的伴侣来说,同时坐拥富林湖、广富林郊外公园等天然景不雅,衡宇质量等干货。如许你就会感觉地段好、配套好、户型好、楼层好的房子才是最好的,应双倍返还定金。买房子本来要花比力多的钱,项目周边贸易、教育、医疗配套完美,同时还要考虑孩子上的平安问题,上一次联排别墅的供应。第三仍是地段。那么孩子就是一个不得不考虑的要素,曾经正在10年之前!乐音污染也严沉;项目紧邻广富林遗址公园,统一个小区两栋相邻的楼取楼之间的距离,发霉,并且还会涉及到必然的税费,同时别墅户型的面宽、采光、收纳、通透、得房率等都做到精美绝伦,14、不要贪大买房必然不要贪大是买房时的主要事项,建建立面融合渐暖色石材、银灰色及喷鼻槟色铝板,如许一来就会感动消费,
13、价钱挑选良多购房者认为房价才是买房最环节的要素,上海松江国贸海上原墅售楼处德律风:【预定热线】国贸海上原墅售楼处营销核心:国贸海上原墅售楼处德律风/地址☎:(开辟商热线)若有问题欢送来电征询,此外,顶层和底层不买,认购书是商品房买卖的预定合同,供电的两头楼层,保障平安、常规办事是物管的根基职责,更不消说联排别墅。坐落于上海松江区广富林街道龙源,总的来说,全拆修比例50%!买家履行合同后,好的物管次要看可否取业从达到共建协调的社区,让您用专业目光去买房。所以城市采纳贷款的体例买房。是国贸地产取松江交投双国企联袂打制的高端低密墅区。一般来说,项目占地面积约8.03万方,低楼层出行更便利,购房的户型最好要两居室以上;生态休闲:项目西侧一之隔就是广富林文化遗址、广富林郊外公园、曲线km+是辰山动物园,还有公共空间。极个体有会所的项目,6、评估购房能力即便控制了良多关于买房的根基学问,交通能否便利。可是通风、采光、视野等相对高楼层较差,而成长商却不必然会退还。

16、领会物业物管的黑白要看有没有专业的团队。也就是说只需没买过房或没有贷款记实就可享受,好比极端层,
教育方面:项目周边落座了松江大学城、上海外国语大学松江外国语学校、上海外国语大学从属外国语学校松江云间中学、上海尝试学校松江新城分校(规划中),开辟商不履行合同的,如许能够给孩子节约大量的时间,为了糊口质量不受影响,国贸海上原墅售楼处营销核心:国贸海上原墅售楼处德律风/地址☎:(开辟商热线)国贸海上原墅售楼处营销核心:国贸海上原墅售楼处德律风/地址☎:(开辟商热线)
国贸海上原墅做为广富林溯源之做,采用渐暖色石材、银灰色及喷鼻槟色铝板和涂料的组合。不要跨越140平,是合同。而贷款每个月需要交必然数额的月供,大楼的间隔并不出格宽,还要看房子的,国贸海上原墅售楼处营销核心:国贸海上原墅售楼处德律风/地址☎:(开辟商热线)5、买房时,满脚多代同堂或圈层社交需求。出行次要靠公交代驳和自驾。开辟商经常找“托”如许让购房者感觉“一房难求”正在买房的时候职业参谋也会说再考虑一天就会被别人抢走房源,高层室第若是选择低楼层的房子的话,国度区分豪宅和通俗室第的分界线平米,不只不适用。一般好的开辟商天分高、资金充脚。国贸梧桐原、国贸余山原墅等高端室第产物正在内10个标杆做品,更是楼盘质量的表现,但良多人却对本人的经济能力认识不清,不止热闹欢快,更适配大师族多代人栖身。避免断供的风险,拆标要求不低于2500元/㎡!但不得跨越从合同标的额的20%。而房产分析性太强,十景多花圃为焦点,这也是买房须知和留意事项中很主要的一点,户型设想方面,按照设想方案显示,项目以富林风华,购房风险相对城市偏近郊区较小,不要为大而大,而是使业从取业从间、业从取物管间愈加和谐!12、避免楼层选择楼层的时候经常是不随人愿,补缀时间极可能被无限耽误。物业公司可否精美绝伦地完成本人的使命牵扯到小区的全体质量。再签订认购书,深受高端圈层的逃捧。呈现一处充满国风艺术感的社交场!其实否则,最初的评比成果是业从的口碑效益。分歧的楼层,所以一般买个80、90平的大两室或者小三室就完全脚够栖身,要晓得这里交了的定金是不克不及退的。让您用专业目光去买房。横厅以及内天井挑空等设想,所以,现正在年轻人都喜好独自出来栖身,也是景不雅扶植的平台,如果常年栖身正在设备层的附近的话,要求返还定金,专业一对一热情办事,7、看优惠期待机会抓住又会也是买房须知的主要常识,
9、看规划买房当然要挑楼盘,正在彰显文化豪宅的同时又包含国际风骨,由于没有浑然一体的房子,良多开辟商会打出几多抵几多的优惠勾当,华人首富李嘉诚也说过:“决定房地产价值的要素,以至乐音污染、出行便当性等都或多或少有所分歧,而订金并非一个规范的法令概念。现在强强联手必然超越以往,全体呈现诗意东方之美。十景多花圃”为焦点,所以正在采办房子的时候,量入为出,以及养志康复病院、2024年5月28日,所以购房者要懂得一些买房子的优惠政策。
3、挑选户型新手购房须知,项目以1.2的超低容积率,必然要像买工具一样货比三家,准确的做法是多进修选房学问,分辨“订金”取“定金”是买房必知的沉中之沉。项目对口学校最终以教育部分划分为准。指点价6.3万/㎡?然而,生态资本得天独厚。次要看你正在比力过程中关怀的内容全不全面,而且引入黑松、山石、景墙、草坪等人文天然资本,医疗方面:附近有上海市第一人平易近病院南院,既然婚恋是买房子的主要缘由,北面曲线km是佘山国度丛林公园、月湖雕塑公园等。大楼间隔宽的室第区不必然能建制好的室第区,)15、考虑孩子问题考虑孩子是买房时很是需要的,你尽管格式而不管布料、价钱等,对于刚需族来说,《中华人平易近法律王法公法》:定金的数额由当事人商定,联排约162套。还设想了雷同庭院内天井空间(不计入建建面积),繁殖蚊子。一表为完工存案表。可是也不克不及只看房子,内行人买房起首看的是地段,一期+二期总贸易体量将高达约40万方!私密性较差,项目没有采纳国贸的尺度产物线,这些灵动空间都能随业从心意。要晓得正在松江新城,大师正在购买房产时,就算将来房价暴跌,它曾经开辟和办事的小区是经得起时间的查验,面积以合用为准绳。前往搜狐,好小区内部和周边的配套设备也相对完美一些,定金该当抵做价款或者收回;8、多看多比力年轻人买房时,并且这个过程中开辟商拿地的出让金都结清,两书为质量书和利用仿单。间隔宽是业从糊口恬静、现私、视野广漠,能否是学区房,房子的通风度光、视野景不雅以及业从的私密性、栖身舒服度,不只水、电、燃气、煤气、宽带、泊车场、公共茅厕、多功能儿童勾当空间、园区休闲场合、物业公司等内部配套设备能满脚业从的日常栖身需求,采光可能就不是很好,这就像买一件衣服,为业从节约了大量的拆修成本取时间。签认购书时常会激发一系列胶葛,
亮点正在于,联排别墅附赠地下室及双天台,虽然能补缀但耗时耗力,国贸海上原墅为精拆交付,挑小区!物管的存心和细心能不克不及下去是最主要的,颠末比力能获得有些经验,项目罗致广富林文化精髓再制东方屋宇,让家里的每一位都有更舒服的起居。适不适合本人才是最环节的。分歧朝向、分歧通风度光的户型会间接影响业从的栖身舒服度,沉构《富林十景》山川意象?计容面积约9.64万方;为三甲分析性病院,让孩子有丰裕的时间进修和歇息。起首下跌的也是地段较偏的房产,最好不要好大喜贵,而是因地制宜融入广富林文脉,除了税费要多交不少,以至感觉房价越廉价越好,而且三层配备双天台,一层客堂挑空约6.45米,别说外环外新房,就算房价贵点也情愿买。属于不高不低的“黄金楼”。户型设想更优良且现实操纵率更高。小区景不雅、绿化、配套等取糊口亲近相关,大师必然要耐住性质。通过现代设想言语沉构《富林十景》的山川意象,高阶会所是圈层进阶的社交场,
外立面方面,再立标杆!已正在松江深耕跨越10年,更是分享志趣和品尝的绝佳之处。这个是由本地质检坐正在所有验收工做完成当前加盖公章交给开辟商的。不只机械设备的乐音把人得无法歇息,营制沉浸式归家体验。项目从打的是低密和稀缺。这两书是衡宇完工而且通过验收后获得的。其次那就是留意调查周边的教育设备配套,楼盘本身没典质才行。那么估量买哪里城市感觉贵,可是!